Dannemarie (68210) Terrain à bâtir de 36 ares / Possibilité 3 parcelles de 12 ares sur DANNEMARIE / Proche commodités
AGENCES Jean-François SCHINDLER IMMOBILIER
Avis clients contrôlés (opinionsystem.fr)
Réf : 3296 EN EXCLUSIVITÉ !
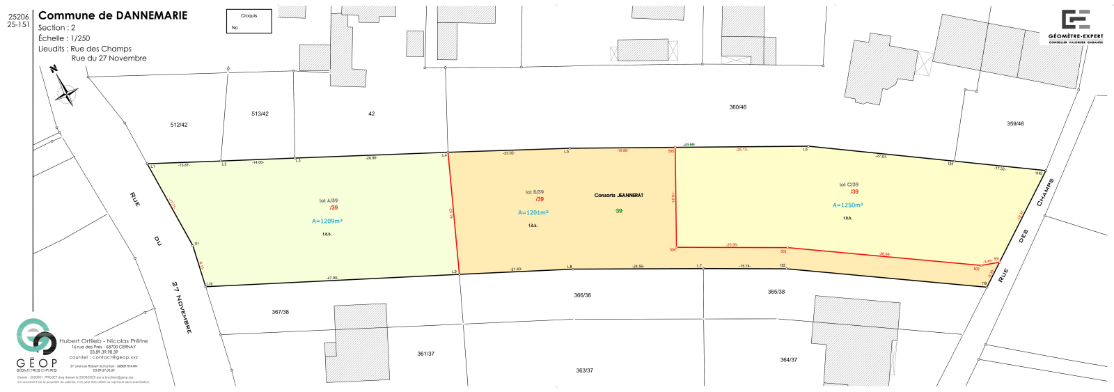
Secteur DANNEMARIE
Sur un beau terrain plat de 36 ares 84 ca, 3 parcelles constructibles:
Réf.3294 / Parcelle de 12 ares environ (Section 2 N°39, Lot N°1) 101 500 € HAI
Réf.3295 / Parcelle de 12 ares environ (Section 2 N°39, Lot N°2) 94 000 € HAI
Réf.3296 / Parcelle de 12 ares environ (Section 2 N°39, Lot N°3) 125 000 € HAI
Les parcelles ne sont pas viabilisées (Tout à l'égout, eau, Electricité, PTT)
Les Cu opérationnels sont positifs.
Bornage des parcelles et Etude de sol (Loi ELAN) en cours
Les informations sur les risques auxquels ce bien est exposé sont disponibles sur le site Géorisques : www.georisques.gouv.fr
Honoraires à la charge du Vendeur.
Agence immobilière, Jean-François Schindler Immobilier.
13 place du Général de Gaulle 90110 Rougemont-le-Château.
Axe Belfort / Mulhouse. 03.84.27.63.02.
Les informations recueillies sur ce formulaire sont enregistrées dans un fichier informatisé par La Boite Immo agissant comme Sous-traitant du traitement pour la gestion de la clientèle/prospects de l'Agence / du Réseau qui reste Responsable du Traitement de vos Données personnelles.
La base légale du traitement repose sur l’intérêt légitime de l'Agence / du Réseau.
Elles sont conservées jusqu'à demande de suppression et sont destinées à l'Agence / au Réseau.
Conformément à la loi « informatique et libertés », vous pouvez exercer votre droit d'accès aux données vous concernant et les faire rectifier en contactant l'Agence / le Réseau.
Si vous estimez, après avoir contacté l'Agence / le Réseau, que vos droits « Informatique et Libertés » ne sont pas respectés, vous pouvez adresser une réclamation à la CNIL.
Nous vous informons de l’existence de la liste d'opposition au démarchage téléphonique « Bloctel », sur laquelle vous pouvez vous inscrire ici : https://www.bloctel.gouv.fr
Dans le cadre de la protection des Données personnelles, nous vous invitons à ne pas inscrire de Données sensibles dans le champ de saisie libre
Ce site est protégé par reCAPTCHA, les Politiques de Confidentialité et les Conditions d'Utilisation de Google s'appliquent.
Détails des diagnostics énergétiques
