Les infos Essentielles
SCHINDLER IMMOBILIER ROUGEMONT-LE-CHÂTEAU ET MONTREUX-CHÂTEAU
Agences axe BELFORT / MULHOUSE
Réf : 3119 Région STEINSOULTZ
En exclusivité. Elevée sur sous-sol complet enterré.
Maison traditionnelle de village très cocooning et bien entretenue.
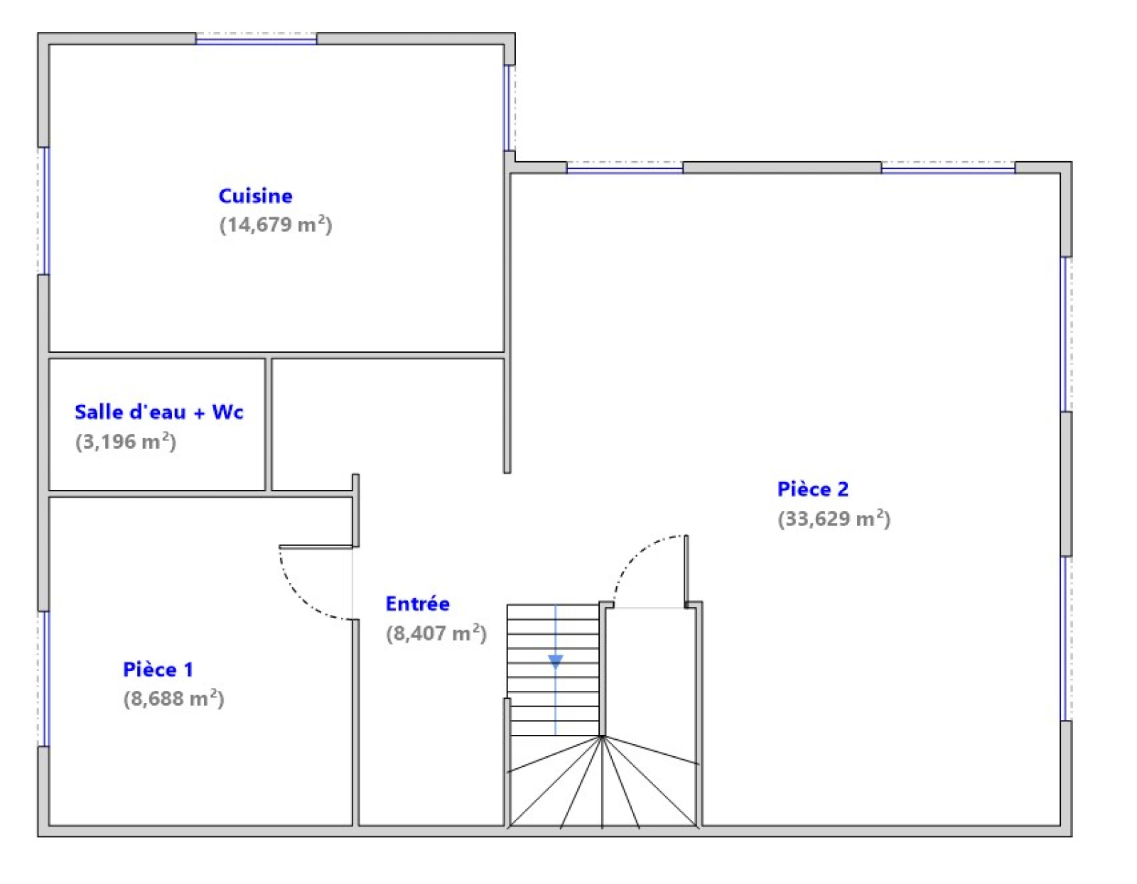
La maison comprend : au rez-de-chaussée, hall d'entrée, séjour/salon/cuisine équipée, salle d'eau avec toilettes, chambre/bureau
accès terrasse de plain-pied par trois baies vitrées.
Au premier étage : grand palier, salle de bains avec toilettes, 2 chambres, 1 chambre avec dressing.
A l’extérieur, terrain partiellement clos et arboré, petite serre, terrasse et jardin.
Chauffage poêle à bois et pompe à chaleur AIR/EAU sur radiateurs.
A proximité de toutes commodités et des axes routiers.
Informations techniques :
Usage : village.
Surface habitable : 127 m²
Surface au sol 135 m²
Surface du terrain avec maison : 729 m²
Nombre de pièces : 6
Nombre de chambres : 4
Nombre de niveaux : 1
Stationnement : oui
Nombre de places : 2
Garage : oui
Ancien/Neuf : assez récent
Etat : bon état général.
Ouvertures en PVC double vitrage
Volets PVC
Pompe à chaleur AIR/EAU
Poêle à bois
Cuisine de 2001
Taxe foncière : 830 €
Exposition : Nord ouest sur la terrasse.
Cuisine équipée : oui
Date de construction : 2001
DPE : Classe énergétique: C ( 170 kWh/m2/an) / GES: A ( 5 kgs CO2/m2/an)
Date de réalisation du diagnostic : 19/12/2022
Honoraires à la charge du vendeur.
Agence immobilière, Jean-François Schindler Immobilier.
13 place du Général de Gaulle 90110 Rougemont-le-Château.
Axe Belfort/Mulhouse. 03.84.27.63.02
Les informations sur les risques auxquels ce bien est exposé sont disponibles sur le site Géorisques
